The Freedom Soho
Overview
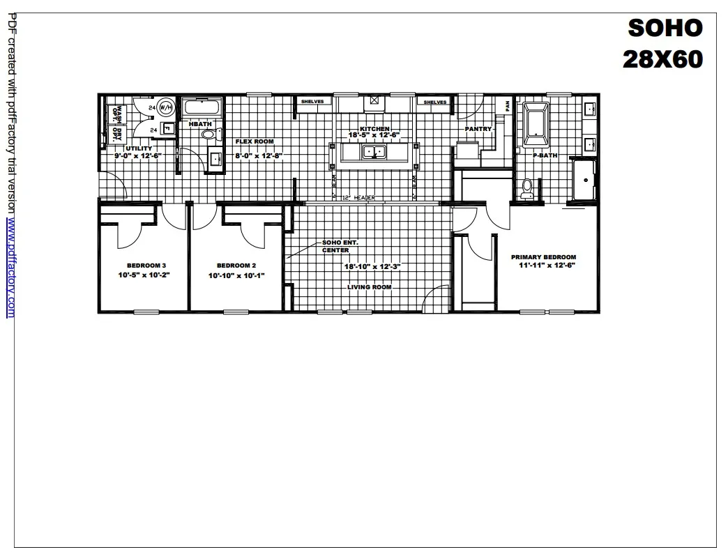
Floor Plan
Overview
28' x 62' Manufactured or Modular Home Standard features include ENERGY-SAVING OPTIONS that can REDUCE ELECTRIC BILLS by up to 40–50% Home Features: -8 or 9 foot ceilings, drywall throughout, wood beams -Spacious kitchen with a massive 10-foot island, accent lighting, farmhouse sink, stainless steel appliances, and a premium range hood -Rear entry with chalkboard wall, coat hooks, and additional storage -Primary bath with a spacious 72" walk-in shower and standalone soaking tub -Two spacious primary walk-in closets -30-year architectural shingles -Multiple upgrade options, colors, and finishes available Energy-Saving Features: -Honeywell® programmable thermostat for easy climate control -Energy-efficient LED lighting -2x6 exterior walls with upgraded insulation throughout the home -Argon gas Low-E windows for year-round comfort -SmartComfort® by CARRIER high-efficiency air system/heat pump -Rheem® hybrid hot water heater 5-Year Home Buyers Protection Plan Financing available
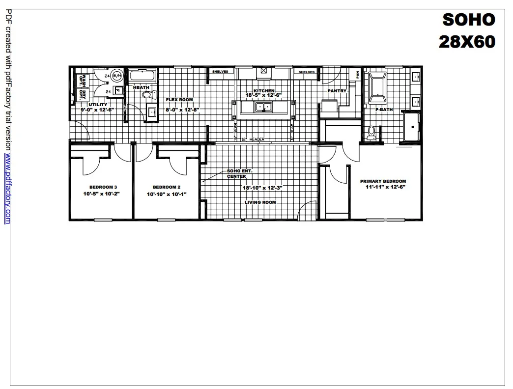
Floor Plan

Homes built with you in mind
We accept trades!
Find a new home you love? Contact us for more information about our trade-in requirements and to schedule your free trade evaluation.
Learn MoreTake the next step
† Advertised starting sales prices are for the home only. Delivery and installation costs are not included unless otherwise stated. Starting prices shown on this website are subject to change, see your local Home Center for current and specific home and pricing information. Sales price does not include other costs such as taxes, title fees, insurance premiums, filing or recording fees, land or improvements to the land, optional home features, optional delivery or installation services, wheels and axles, community or homeowner association fees, or any other items not shown on your Sales Agreement, Retailer Closing Agreement and related documents (your SA/RCA). If you purchase a home, your SA/RCA will show the details of your purchase. Homes available at the advertised sales price will vary by retailer and state. Artists’ renderings of homes are only representations and actual home may vary. Floor plan dimensions are approximate and based on length and width measurements from exterior wall to exterior wall. We invest in continuous product and process improvement. All home series, floor plans, specifications, dimensions, features, materials, and availability shown on this website are subject to change.


































